 
    
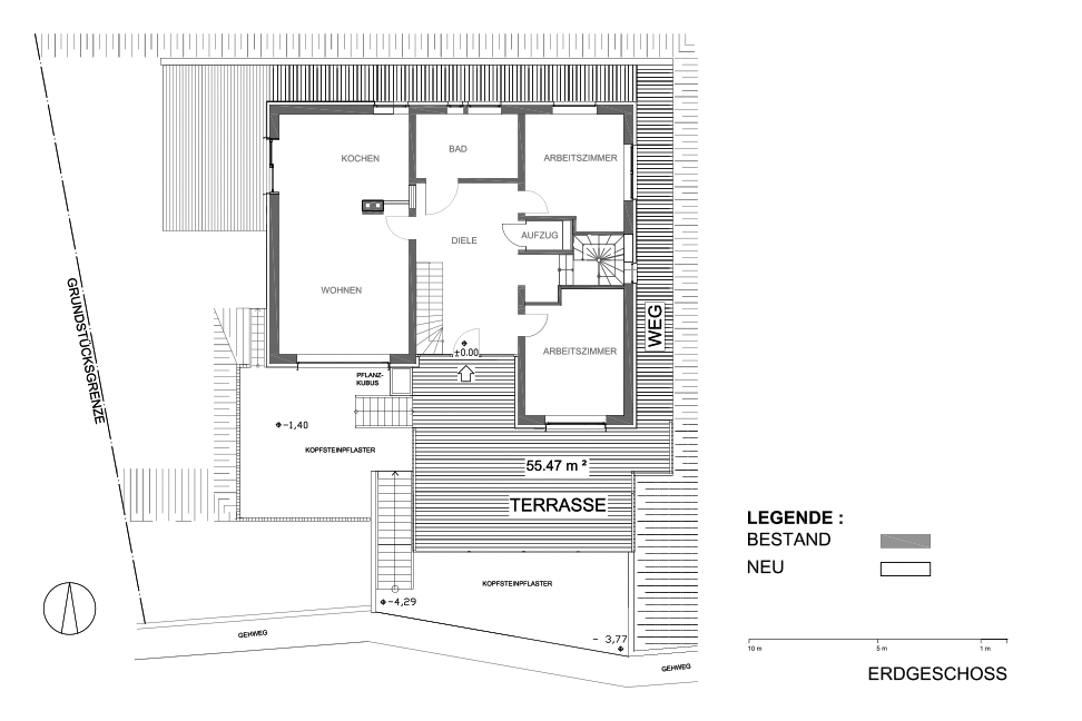
Die Garage des Altbestands stellte auf Grund ihrer geringen Abmessungen und der steilen Zufahrtsrampe weiterhin ein Problem für die auf einen Rollstuhl angewiesene Bauherrin dar. So wurden wir, die wir bereits mit dem ersten Bauabschnitt betraut waren, in unserer Funktion als Architekten und Innenarchitekten damit beauftragt, einen Anbau mit großzügig bemessener Doppelgarage und behindertengerechter Terrasse zu erstellen. Die gewünschte 7,5 m breite Toreinfahrt sollte dabei die vorhandene Architektur nicht dominieren und eine neue Treppenanlage, die versteckt liegende, zum Wohngebäude führende alte Treppenanlage ersetzen.
In Bezug auf die Altgarage war ein Absenken des neuen Garagenniveaus um 1,28 m erforderlich. Die Fundamente des höherliegenden Wohngebäudes im Bereich des Anbaus wurden unterfangen. Der Höhenunterschied wird durch einen Rollstuhl-Plattformlift überbrückt.
Um das Eindringen von drückendem Wasser zu verhindern, wurde der Wandanschluss auf der Hangseite als wasserdichte Wanne ausgeführt. Die gesamte Rohbauausführung erfolgte in wasserdichtem Ortbeton. Die Außenwände erhielten im Sichtbereich eine hinterlüftete Stulpschalung auf Holzunterkonstruktion mit 6 cm Mineralwolldämmung. Im Erdbereich kam eine Perimeterdämmung zum Einsatz.
Um ein homogenes Erscheinungsbild des Anbaus auch bei der breiten Garageneinfahrt zu erreichen, wurde anstelle des sonst üblichen Rolltors ein Kipptor eingebaut. So konnte das Tor mit der gleichen Stulpschalung wie die seitlichen Umfassungswände versehen und flächenbündig in die Fassade integriert werden.
Den Hauseingang und die vorgelagerte Terrasse auf Erdgeschossebene erreicht man über zwei mit Eisenoxidpigmenten eingefärbte, monolithische Sichtbetontreppenanlagen. Das Terrassengeländer und die Terassendielen wurden aus witterungsbeständigem Wasserbauholz hergestellt. Über einen kleinen Steg setzt sich die Terrasse als umlaufender Weg ohne Niveauversprung bis zur Westterrasse fort.
Ein behindertengerechter Anbau wie dieser hat neben einer Verbesserung der Bewegungsfreiheit für die Bauherrin einen Gewinn an Wohn- und Lebensqualität für die ganze Familie erbracht.
